3 Bedroom Detached House
What this property offers
About this property
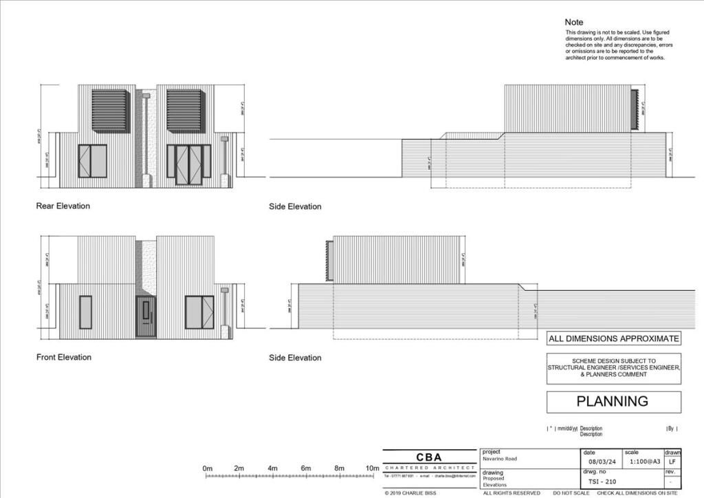
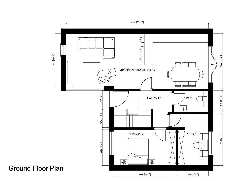
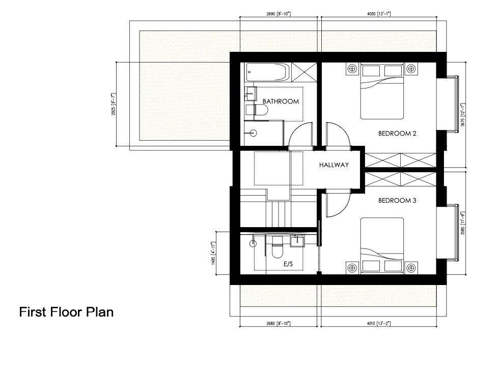
Planning consent has been granted for the construction of a rare detached modernist home extending to approximately 1,237 sq ft, arranged over two floors with a flat roof. The approved design provides three bedrooms, two bathrooms, a separate WC and a dedicated home office, with the layout carefully designed to maximise light and privacy throughout.
The secure, fully enclosed plot is accessed via a private walkway between two handsome Victorian houses, opening onto the main site. The scheme includes a generous private front courtyard and a rear terrace, providing excellent outdoor space rarely found in this vibrant East London neighbourhood.
This opportunity will appeal to an ambitious self-build owner-occupier with an appreciation for modernist architecture and the chance to create a detached home finished to a bespoke specification. Full planning permission was granted in December 2025, with a signed Section 106 Agreement in place. The eventual purchaser will be responsible for approximately £51,000 in Section 106 and carbon offset contributions; all other associated costs have been settled by the vendor. The site will be cleared prior to completion. Purchasers will be responsible for the removal of a small disused brick WC and a timber and sheet-metal storage shed, both of which are already accounted for within the approved plans.
London Fields is just a short stroll away, offering cricket pitches, tennis courts and the much-loved London Fields Lido, one of London’s few remaining outdoor heated pools. London Fields and Hackney Downs Overground stations are nearby, providing swift connections across the city. The area is also renowned for its outstanding food and drink scene, with local favourites including Wilton Way Deli & Wines, Binch, Pophams, E5 Bakehouse and Pockets, alongside acclaimed restaurants such as BRAT x Climpson’s Arch, Elliott’s, Bambi and Behind. Broadway Market, with its independent shops, cafés and vibrant weekend street food stalls, is also within easy reach.
Location
Nearby Properties
Listed by
Fyfe Mcdade Limited
Disclaimer: Property descriptions, images, and related information displayed on this page are aggregated from publicly available sources across the web and presented for informational purposes only. While we strive for accuracy, home.co.uk cannot guarantee that all details are current or complete. This information is provided as a guide only and should not replace professional property advice. We strongly recommend contacting Fyfe Mcdade Limited directly to verify availability, arrange viewings, and obtain comprehensive property documentation.
Added 20 Feb 2026
Fyfe Mcdade Limited
Shoreditch
38
Properties
7
Years
89%
Response
Quick Actions
Mortgage Advice
Get move ready. Fee-Free mortgage advice to help you secure your dream home
Compare rates from leading UK lenders
Expert guidance throughout the process
No obligation, completely free service
Check broadband on this home
See the speeds and deals available for this postcode