2 Bed Bungalow For Sale

Kings Hill, Alton

GU34 4AW

£750,000

Added 24 Nov 2025

New Listing

Property Details

Property Type

Bungalow

Bedrooms

2

Location

GU34

Description

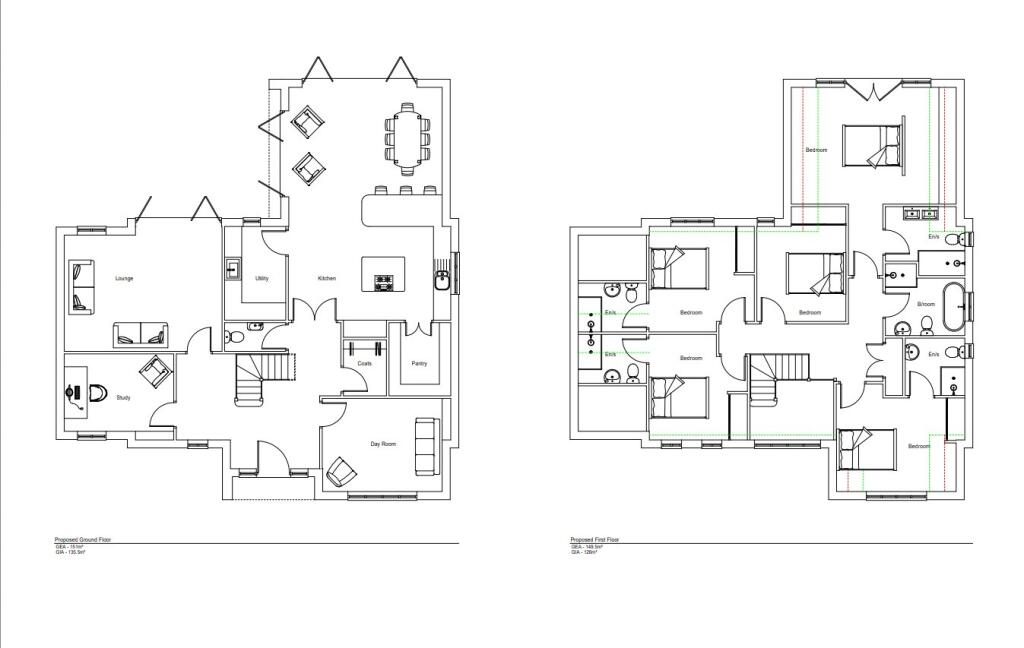
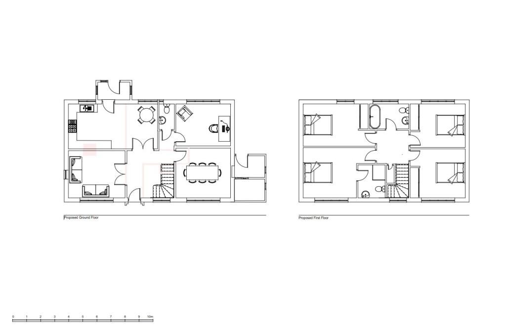
Positioned within the highly sought-after village of Beech, bordering Bushy Leaze woodlands is this unique opportunity that offers planning permission already granted for either

1. Permitted development prior approval to add an additional storey to the bungalow (Application Reference EHDC-25-0018-PA1AA)

2. Full planning permission for demolition and replacement of the existing dwelling & outbuilding with a self build dwelling (Application Reference EHDC-25-0816-FUL)

Set within just shy of 3 acres of private grounds, the property provides exceptional space, privacy and scope rarely found in this location.

Further enhancing its appeal, the property includes a selection of outbuildings, including stables, offering potential for redevelopment, storage, workshops or equestrian facilities.

Beech is a desirable and well-connected village, known for its attractive setting, easy access to Alton and surrounding towns, and its strong sense of community.

This is a superb chance to create a substantial family home in one of the area’s most attractive rural locations, with planning permission already in place and the acreage, buildings and setting to support a truly standout country property.

Location

Map showing GU34 4AW

Nearby Properties

Disclaimer: Property descriptions, images, and related information displayed on this page are aggregated from publicly available sources across the web and presented for informational purposes only. While we strive for accuracy, home.co.uk cannot guarantee that all details are current or complete. This information is provided as a guide only and should not replace professional property advice. We strongly recommend contacting Bourne Estate Agents directly to verify availability, arrange viewings, and obtain comprehensive property documentation.

Listed by

Bourne Estate Agents

Mortgage Advice

Get move ready. Fee-Free mortgage advice to help you secure your dream home

Compare rates from leading UK lenders

Expert guidance throughout the process

No obligation, completely free service

Fee-Free Mortgage Advice
Powered by homemove.com

Check broadband on this home

See the speeds and deals available for GU34 4AW