2 Bedroom Flat
Ferncroft Avenue, London, NW3 7PH
What this property offers
About this property
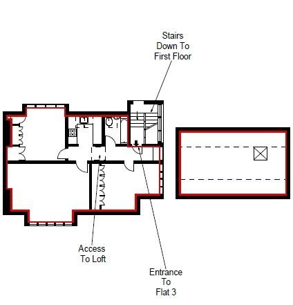
The property benefits from an 18' south facing reception room, built in wardrobes in both bedrooms, access to loft space and being less than one mile from Hampstead Village and Hampstead Underground (Northern Line).
We are advised that the loft space is demised to the flat and that the owner had used this for storage. There is potential to convert the loft to habitable accommodation subject to full consent from any relevant parties and planning permission. Sole agent.
Selling your property in Ferncroft Avenue? Trying to find your perfect home to buy? Register with Chestertons Hampstead to get the full picture from the experts in the Hampstead market.
Our China Desk is here for you, if Chinese is your preferred language, please get in touch via WeChat (S-ChestertonsAPAC)
Location
Nearby Properties
Listed by
Chestertons
Disclaimer: Property descriptions, images, and related information displayed on this page are aggregated from publicly available sources across the web and presented for informational purposes only. While we strive for accuracy, home.co.uk cannot guarantee that all details are current or complete. This information is provided as a guide only and should not replace professional property advice. We strongly recommend contacting Chestertons directly to verify availability, arrange viewings, and obtain comprehensive property documentation.
Added 29 Jan 2026
Chestertons
Hampstead
114
Properties
6
Years
88%
Response
Quick Actions
Mortgage Advice
Get move ready. Fee-Free mortgage advice to help you secure your dream home
Compare rates from leading UK lenders
Expert guidance throughout the process
No obligation, completely free service
Check broadband on this home
See the speeds and deals available for NW3 7PH