4 Bedroom Detached House
Coleshill Lane, Winchmore Hill, HP7 0NR
What this property offers
About this property
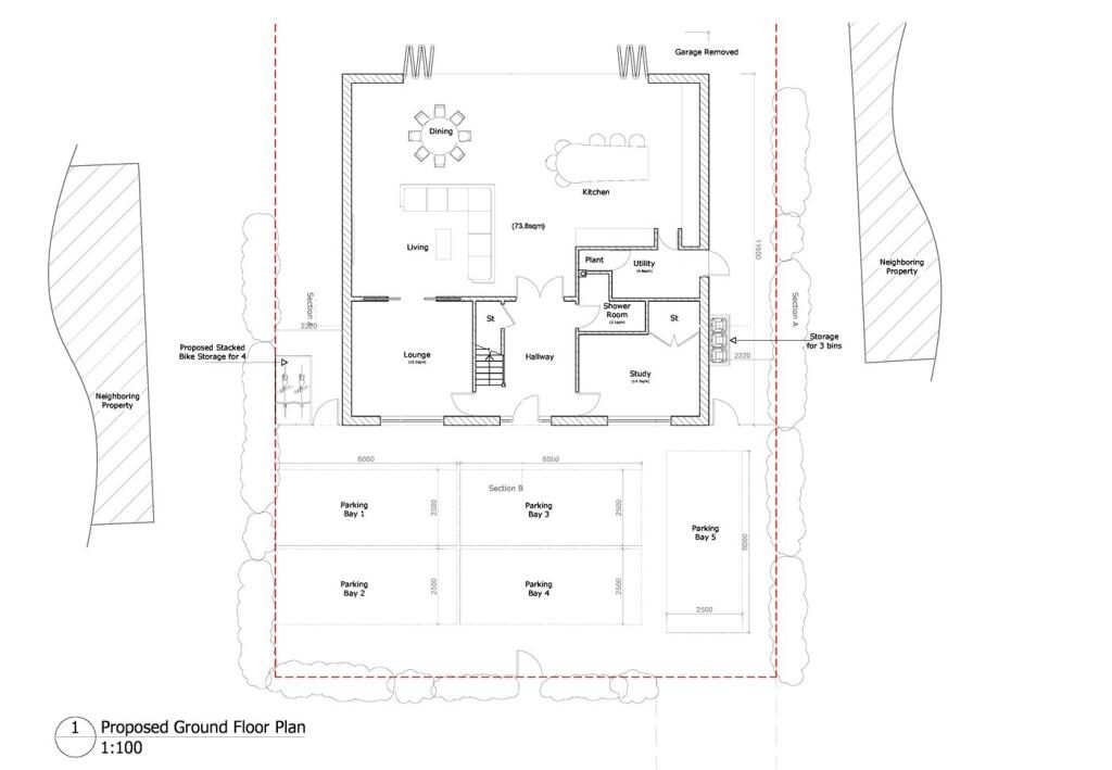
Planning permission has been granted to build a new-build four-bedroom home on this beautiful level plot with existing house on Coleshill Lane offering incoming purchasers the option to build their dream home either immediately or at a later stage. This new-build house would provide accommodation of approximately 2350sq ft comprising a spacious open plan kitchen/family room, lounge, study, utility room, four bedrooms and three bath/shower rooms. Full planning details can be found on the Buckinghamshire Council website, Chiltern and South Bucks division, planning reference PL/24/3808/FA
The existing double fronted house includes approximately 1,000 sq ft of accommodation with two reception rooms, kitchen, a conservatory style rear reception, shower room, two double bedrooms and additional reception room which would make a good study or third bedroom. The property is set on a plot of circa 0.2 acre. To the front, the garden is mainly laid to lawn with a central pathway and driveway leading to both the house and detached garage and to the rear, a large garden with mature hedging.
The property is located in a picturesque spot, just moments from the heart of Winchmore Hill village, close to both countryside walks and its popular local pub.
For a more comprehensive range of supermarkets, high street stores, leisure and practical amenities, along with direct rail access into London, both Beaconsfield and Amersham are easily accessible at approximately 3-4 miles away.
Buckinghamshire retains the selective grammar school system with schools in Beaconsfield and nearby High Wycombe both highly regarded.
Location
Nearby Properties
Listed by
Winkworth
Disclaimer: Property descriptions, images, and related information displayed on this page are aggregated from publicly available sources across the web and presented for informational purposes only. While we strive for accuracy, home.co.uk cannot guarantee that all details are current or complete. This information is provided as a guide only and should not replace professional property advice. We strongly recommend contacting Winkworth directly to verify availability, arrange viewings, and obtain comprehensive property documentation.
Added 26 Feb 2025
Winkworth
Beaconsfield
25
Properties
18
Years
87%
Response
Quick Actions
Mortgage Advice
Get move ready. Fee-Free mortgage advice to help you secure your dream home
Compare rates from leading UK lenders
Expert guidance throughout the process
No obligation, completely free service
Check broadband on this home
See the speeds and deals available for HP7 0NR