9 Bedroom Detached House
Queens Road, Huddersfield, HD2 2AE
What this property offers
About this property
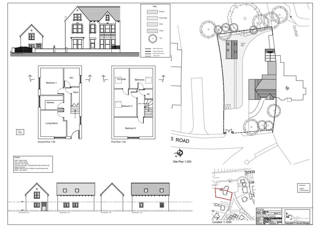
A truly exceptional and characterful residence of notable historic interest, this substantial home is recognised as one of Edgerton’s distinguished villas and is referenced in The Villas of Edgerton by David Griffiths. A much-loved family property for over 20 years, it now presents a rare opportunity to acquire one of the area’s most distinctive and historically significant homes. Occupying an enviable position within this highly desirable and sought-after location, the property enjoys excellent accessibility. The M62 motorway network is close by, the prestigious Huddersfield Grammar School is within easy reach, and Huddersfield town centre is just a short drive away, making this an ideal setting for both family living and future investment. This remarkable and versatile property offers a wealth of potential to the discerning purchaser. Whether envisaged as an impressive large family home, a commercial opportunity, or a conversion into student accommodation or an HMO (subject to the necessary consents), the scale, layout and historic setting provide a multitude of exciting prospects. Further enhancing its appeal, the property benefits from planning permission for a three-bedroom detached dwelling within the substantial grounds, offering a significant development opportunity or additional income potential. Homes of this calibre, character and flexibility are seldom available in such a prime location. Viewing is strongly advised to fully appreciate the charm, space and unique opportunities this outstanding and truly one-of-a-kind property has to offer.
EPC Rating: D
Location
Nearby Properties
Listed by
Home & Manor
Disclaimer: Property descriptions, images, and related information displayed on this page are aggregated from publicly available sources across the web and presented for informational purposes only. While we strive for accuracy, home.co.uk cannot guarantee that all details are current or complete. This information is provided as a guide only and should not replace professional property advice. We strongly recommend contacting Home & Manor directly to verify availability, arrange viewings, and obtain comprehensive property documentation.
Added 23 Jan 2026
Home & Manor
Kirkheaton
172
Properties
13
Years
94%
Response
Quick Actions
Mortgage Advice
Get move ready. Fee-Free mortgage advice to help you secure your dream home
Compare rates from leading UK lenders
Expert guidance throughout the process
No obligation, completely free service
Check broadband on this home
See the speeds and deals available for HD2 2AE