2 Bedroom Apartment
Turnshaw Road, Huddersfield, HD8 0TF
What this property offers
About this property
The Manor House is a fine period property which has been carefully restored and adapted into 11 luxury apartments exclusively for those aged 55 and over. Enjoying a majestic setting in its own grounds extending to over 5 acres with a mixture of private woodland, a meadow as well as landscaped garden area allowing the outdoors to be enjoyed without any maintenance. The highly regarded village centre of Kirkburton is only a short walk away with a great variety of amenities.
Location - The charming semi rural village of Kirkburton is located in a conservation area which enjoys varied amenities including a post office, library, bus stops, restaurants, pubs and numerous shops and hairdressers including butchers, bakers and mini supermarket. Surrounded by open rolling countryside providing access to a network of public footpaths to explore the great outdoors.
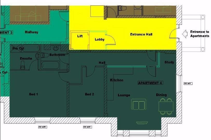
The Accommodation - Appointed to a high standard each self contained apartment benefits from spacious rooms and modern fittings throughout. Each floor benefits from a newly installed lift and on site numerous care and domestic services will be made available to the residents of the Manor House. The floor plans and site plan give additional detail and any further enquiries should be directed to Cornerstone Estate Agents at the Kirkburton office.
Open Living Area - 20' 2" (red. to 12' 5") x 16' 1" (red. to 12' 5") (6.15m x 4.90m) approx. Open plan kitchen dining and lounge comprising new light wood wall and base units, black roll top work surfaces, electric oven and hob with overhead extractor fan. Providing ample space for dining and large window overlooking the gardens from the lounge.
Master Bedroom - 14' 9" x 11' 5" (4.50m x 3.48m) approx. Master bedroom with en-suite.
Bedroom 2 - 12' 9" (reducing to 7' 10") x 9' 3" (reducing to 5' 10") (3.89m x 2.82m) approx.
Location
Nearby Properties
Listed by
Reloc8 Properties
Disclaimer: Property descriptions, images, and related information displayed on this page are aggregated from publicly available sources across the web and presented for informational purposes only. While we strive for accuracy, home.co.uk cannot guarantee that all details are current or complete. This information is provided as a guide only and should not replace professional property advice. We strongly recommend contacting Reloc8 Properties directly to verify availability, arrange viewings, and obtain comprehensive property documentation.
Added 20 Feb 2026
Reloc8 Properties
West Yorkshire
111
Properties
14
Years
96%
Response
Quick Actions
Mortgage Advice
Get move ready. Fee-Free mortgage advice to help you secure your dream home
Compare rates from leading UK lenders
Expert guidance throughout the process
No obligation, completely free service
Check broadband on this home
See the speeds and deals available for HD8 0TF