7 Bedroom Not Specified
Ilford Lane, Ilford, IG1 2RT
What this property offers
About this property
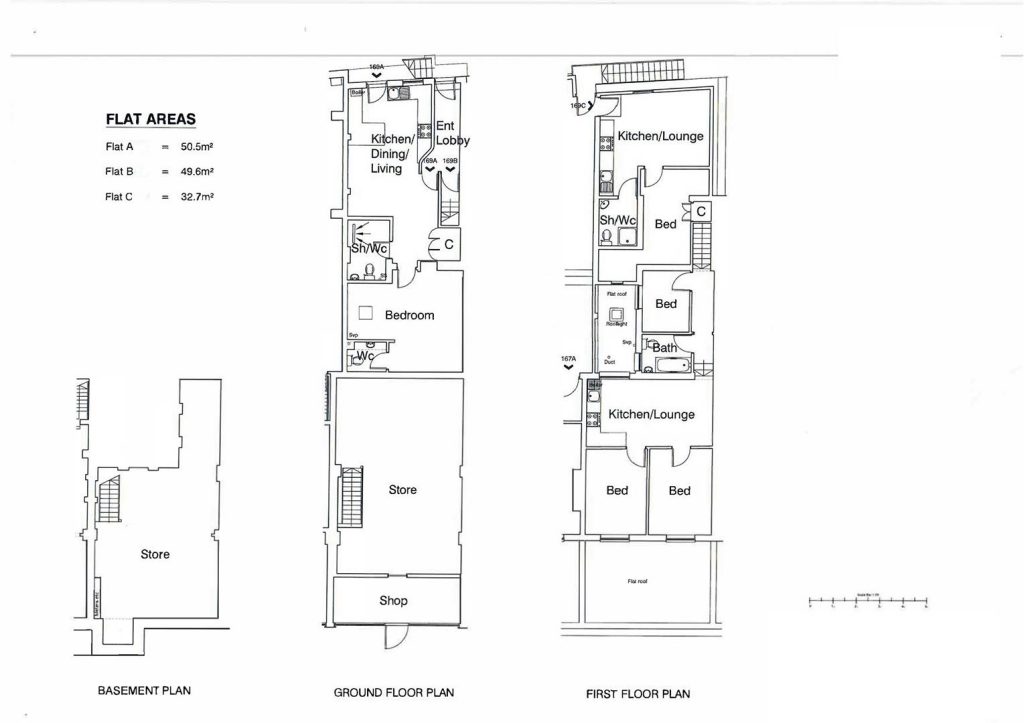
The buildings are set over 3 levels (Basement, Ground and First Floor). They are fully occupied with all legal agreements in place.
Current businesses will be unaffected with the sale, however there is further potential to increase the property size and layout subject to the relevant planning permissions.
The 6064 sq ft CORNER plot site is currently set out as:
6 x commercial units
5 x residential units (3 x 1 Bed/2 x 2 Bed)
Floorplans attached, further photos to follow.
Viewings are strictly by appointment only by Hawks Estate Agents
Contact the office on and ask for Miss Cristina Broasca to discuss further and the full breakdown of the income stream.
Location
Nearby Properties
Listed by
Hawks Estate Agents
Disclaimer: Property descriptions, images, and related information displayed on this page are aggregated from publicly available sources across the web and presented for informational purposes only. While we strive for accuracy, home.co.uk cannot guarantee that all details are current or complete. This information is provided as a guide only and should not replace professional property advice. We strongly recommend contacting Hawks Estate Agents directly to verify availability, arrange viewings, and obtain comprehensive property documentation.
Added 11 Sep 2025
Hawks Estate Agents
London
31
Properties
9
Years
91%
Response
Quick Actions
Mortgage Advice
Get move ready. Fee-Free mortgage advice to help you secure your dream home
Compare rates from leading UK lenders
Expert guidance throughout the process
No obligation, completely free service
Check broadband on this home
See the speeds and deals available for IG1 2RT