5 Bed Detached For Sale

Dovers Green Road, Reigate, Surrey

RH2 8DW

£1,050,000

Added 05 Sep 2025

Price Reduced
Property image
1 / 10

Property Details

Property Type

Detached

Bedrooms

5

Location

RH2

Description

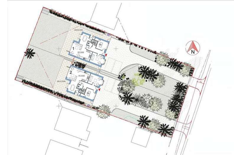
ATTENTION DEVELOPERS !. A fantastic opportunity to create 2 superb homes on a large level building plot 0.376 acre in size. Exceptional position close to local amenities; Planning permission granted ref 24/02356/F for 2 large 3 storey, detached houses ( 2200 sq ft each) 5 bedrooms, 3 bathrooms, 4 receptions with large gardens, driveways and parking. Excellent position short walk to the of all grades, local shops and Priory Park. Accessible to Reigate Town centre, train station and M25 and Gatwick Airport. For more information, plans, planning permission etc etc contact Cubitt and West[use Contact Agent Button] *The architects drawings are for illustrative purposes only and should not be relied on

Location

Map showing RH2 8DW

Nearby Properties

Disclaimer: Property descriptions, images, and related information displayed on this page are aggregated from publicly available sources across the web and presented for informational purposes only. While we strive for accuracy, home.co.uk cannot guarantee that all details are current or complete. This information is provided as a guide only and should not replace professional property advice. We strongly recommend contacting Cubitt & West directly to verify availability, arrange viewings, and obtain comprehensive property documentation.

Listed by

Cubitt & West

01737 301436

Get Move Ready

Fee-Free mortgage advice to help you secure your dream home

Compare rates from leading UK lenders

Expert guidance throughout the process

No obligation, completely free service

Fee-Free Mortgage Advice
Powered by homemove.com

Check broadband on this home

See the speeds and deals available for RH2 8DW