2 Bed Detached For Sale

15a Tullydagan Road, Lurgan, BT67 9LJ

BT67 9LJ

£175,000

Added 28 May 2021

Property image
1 / 10

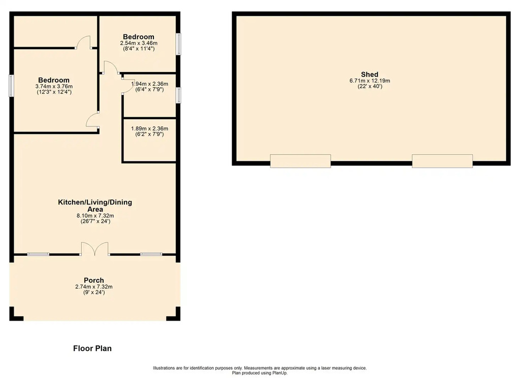
Property Details

Property Type

Detached

Bedrooms

2

Location

BT67

Description

Additional Information Charming detached Log Cabin Purposely designed accommodation including an open plan kitchen/dining and living room with cast iron wood burning stove Oak fitted kitchen with built in appliances 2 bedrooms Shower room Separate ...

Location

Nearby Properties

Disclaimer: Property descriptions, images, and related information displayed on this page are aggregated from publicly available sources across the web and presented for informational purposes only. While we strive for accuracy, home.co.uk cannot guarantee that all details are current or complete. This information is provided as a guide only and should not replace professional property advice. We strongly recommend contacting Stewart Estate Agents directly to verify availability, arrange viewings, and obtain comprehensive property documentation.

Listed by

Get Move Ready

Fee-Free mortgage advice to help you secure your dream home

Compare rates from leading UK lenders

Expert guidance throughout the process

No obligation, completely free service

Fee-Free Mortgage Advice
Powered by homemove.com

Check broadband on this home

See the speeds and deals available for BT67 9LJ