6 Bed Property For Sale

Burkes Road, Beaconsfield, Buckinghamshire, HP9

HP9 1PN

£2,250,000

Added 17 May 2025

Price Reduced
Property image
1 / 9

Property Details

Property Type

Property

Bedrooms

6

Location

HP9

Description

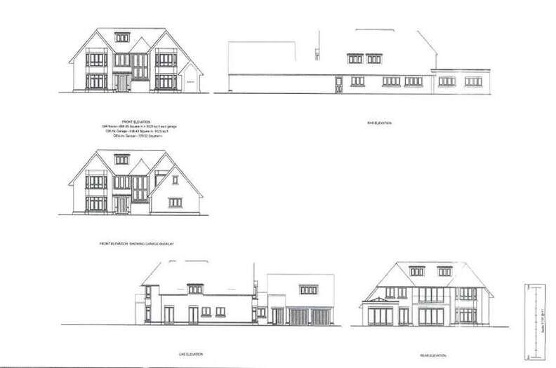
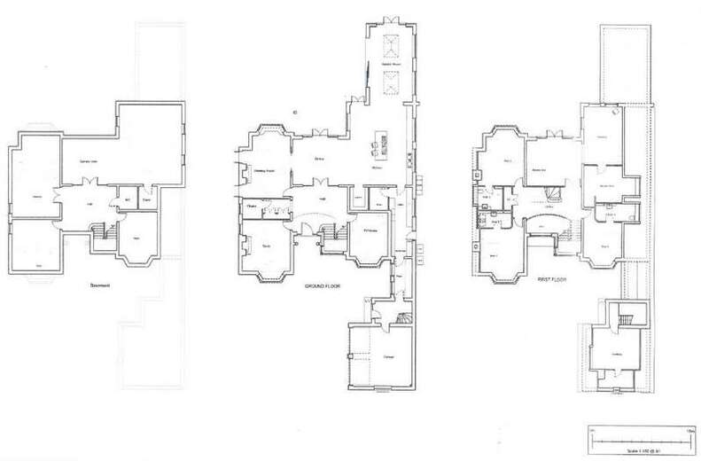
A wonderful self-build opportunity in a plot of approx 0.6 of an acre, situated in an enviable position along one of Beaconsfield?s most sought-after roads in the Golden Triangle. Planning permission has been granted for an elegant and imposing 7 ...

Location

Map showing HP9 1PN

Nearby Properties

Disclaimer: Property descriptions, images, and related information displayed on this page are aggregated from publicly available sources across the web and presented for informational purposes only. While we strive for accuracy, home.co.uk cannot guarantee that all details are current or complete. This information is provided as a guide only and should not replace professional property advice. We strongly recommend contacting Winkworth directly to verify availability, arrange viewings, and obtain comprehensive property documentation.

Listed by

Get Move Ready

Fee-Free mortgage advice to help you secure your dream home

Compare rates from leading UK lenders

Expert guidance throughout the process

No obligation, completely free service

Fee-Free Mortgage Advice
Powered by homemove.com

Check broadband on this home

See the speeds and deals available for HP9 1PN