0 Bed Detached For Sale

Skegby Road, Kirkby-in-Ashfield, Nottingham, NG17

NG17 9FR

£150,000

Added 08 Apr 2024

Price Reduced
Property image
1 / 8

Property Details

Property Type

Detached

Bedrooms

0

Location

NG17

Description

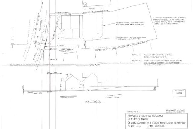
* DEVELOPMENT OPPORTUNITY * This plot is set back off the well regarded Skegby Road in Kirkby, with PLANNING APPROVED for 2 CHALET BUNGALOWS WITH PARKING. With potential resale value in excess of 500,000, this represents a potentially lucrative opportunit

Location

Map showing NG17 9FR

Nearby Properties

Disclaimer: Property descriptions, images, and related information displayed on this page are aggregated from publicly available sources across the web and presented for informational purposes only. While we strive for accuracy, home.co.uk cannot guarantee that all details are current or complete. This information is provided as a guide only and should not replace professional property advice. We strongly recommend contacting Watsons directly to verify availability, arrange viewings, and obtain comprehensive property documentation.

Listed by

Get Move Ready

Fee-Free mortgage advice to help you secure your dream home

Compare rates from leading UK lenders

Expert guidance throughout the process

No obligation, completely free service

Fee-Free Mortgage Advice
Powered by homemove.com

Check broadband on this home

See the speeds and deals available for NG17 9FR