No saved properties yet
Ings Field Road, YO26 9RY
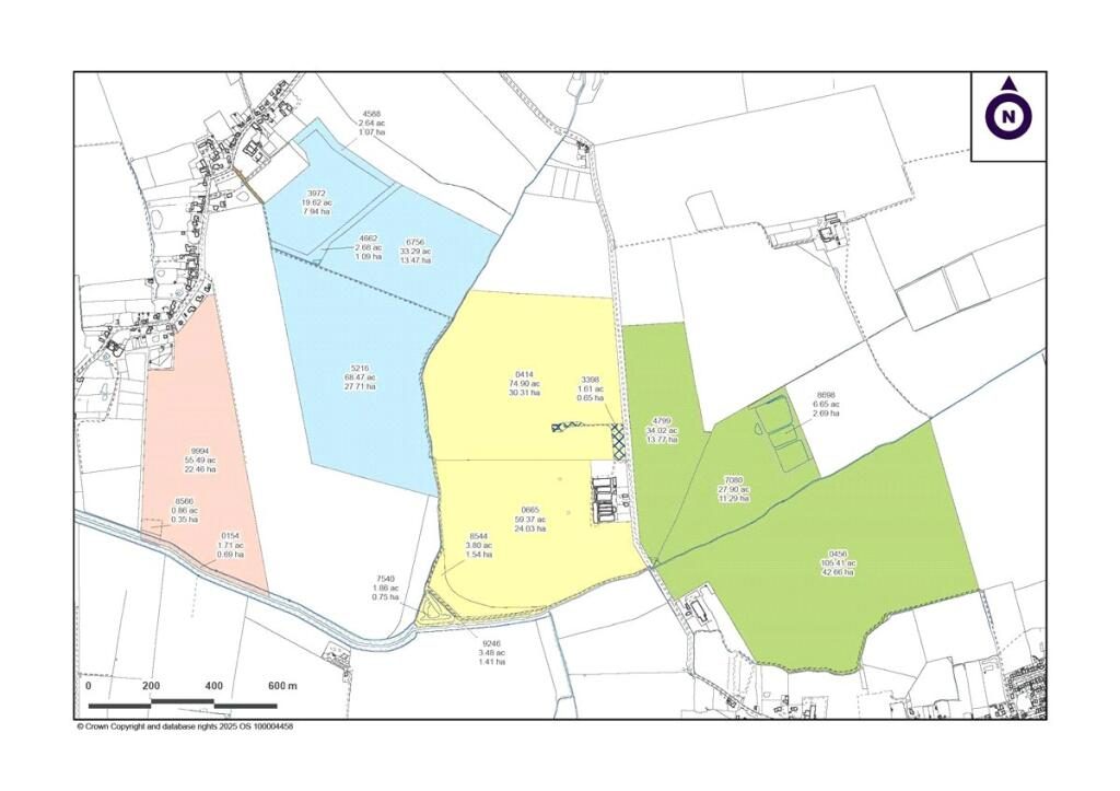
LocationThe land at Scarers Lane is situated approximately 0.5 mile to the south-east of the village...
Listed 3 Sep 2025
Foston Lane, YO25 8BQ
EXPRESSIONS OF INTEREST AND INITIAL OFFERS BY 12 NOON ON FRIDAY 18TH JULY 2025LocationThe land is si...
Listed 22 May 2025